Czym jest hydrant wewnętrzny boczny?
Hydrant wewnętrzny boczny to kluczowy element systemów przeciwpożarowych, przeznaczony do szybkiego i skutecznego gaszenia pożarów w obrębie budynków. W ofercie firmy SUPRON dostępne są różne warianty tego urządzenia, dostosowane do specyficznych potrzeb i wymagań obiektów.

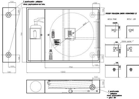
Hydrant wewnętrzny DN25 zawieszany z wężem półsztywnym
Jednym z modeli jest hydrant wewnętrzny DN25 zawieszany z wężem półsztywnym o średnicy 25 mm. Jest to wersja boczna, która posiada zintegrowane miejsce na zamontowanie gaśnicy. Otwory przyłączeniowe tego hydrantu są zaślepione, co umożliwia elastyczne podłączenie go do instalacji zasilającej o średnicy 1 cala lub 2 cali.
Hydrant wewnętrzny DN33 wnękowy z wężem półsztywnym
Innym dostępnym modelem jest hydrant wewnętrzny DN33 wnękowy z wężem półsztywnym o średnicy 33 mm, również w wykonaniu bocznym. Podobnie jak w przypadku DN25, otwory przyłączeniowe są zaślepione, co zapewnia możliwość adaptacji do istniejących systemów wodociągowych.

Indywidualne opcje i konfiguracja hydrantów
Dla każdego hydrantu dostępne są dodatkowe opcje, które pozwalają na dostosowanie urządzenia do indywidualnych potrzeb klienta. Obejmują one:
- Wykonanie ze stali ocynkowanej lub nierdzewnej (INOX).
- Zastosowanie szyby bezpiecznej lub okna z pleksi.
- Możliwość umieszczenia dowolnej grafiki na szybie.
- Dostępność dowolnej kolorystyki frontu lub całej szafy hydrantu.
- Możliwość wykonania szafy w niestandardowych wymiarach.
Wszystkie te opcje są wyceniane indywidualnie, co pozwala na precyzyjne dopasowanie kosztów do zakresu modyfikacji.
Podstawowa wersja a opcje indywidualne
Należy pamiętać, że przedstawione parametry i opisy często dotyczą wersji podstawowej hydrantu. W celu sprecyzowania indywidualnych opcji i konfiguracji, zaleca się kontakt ze sprzedawcą firmy SUPRON.
Parametry techniczne i gwarancja
Podmiotem odpowiedzialnym za produkty marki SUPRON na terenie Unii Europejskiej jest firma PUH "SUPRON 3" z siedzibą w Radomiu, przy ulicy Sadowniczej 6. Producent udziela 2-letniej gwarancji na swoje hydranty, obejmującej naprawę lub wymianę sprzętu w ciągu 24 miesięcy od daty zakupu.
Zastosowanie hydrantów wewnętrznych
Hydranty wewnętrzne oferowane przez SUPRON są zaprojektowane do zabezpieczania szerokiego zakresu obiektów, w tym:
- Obiektów użyteczności publicznej.
- Pomieszczeń biurowych i produkcyjnych.
- Szkół.
- Magazynów, w tym magazynów cieczy palnych.
- Garaży.
- Portów lotniczych.
- Domów i mieszkań prywatnych.